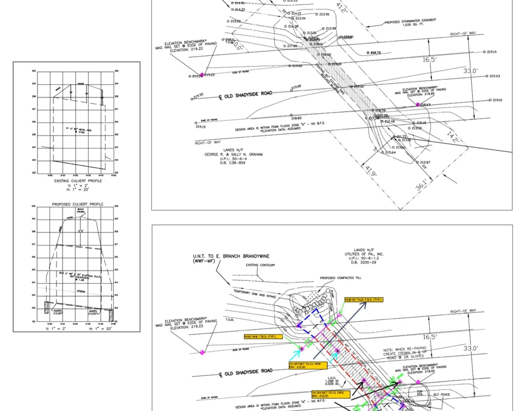
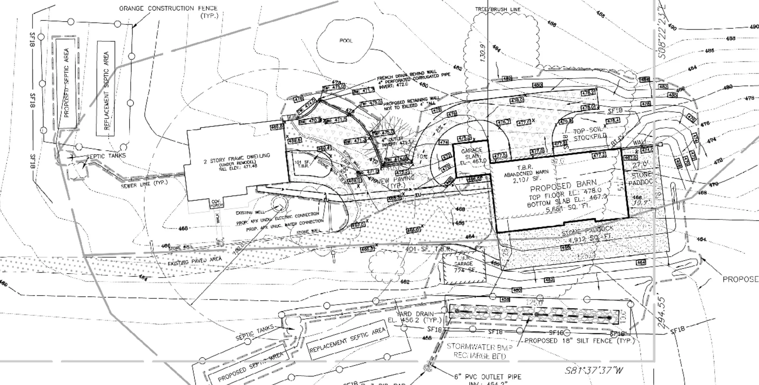
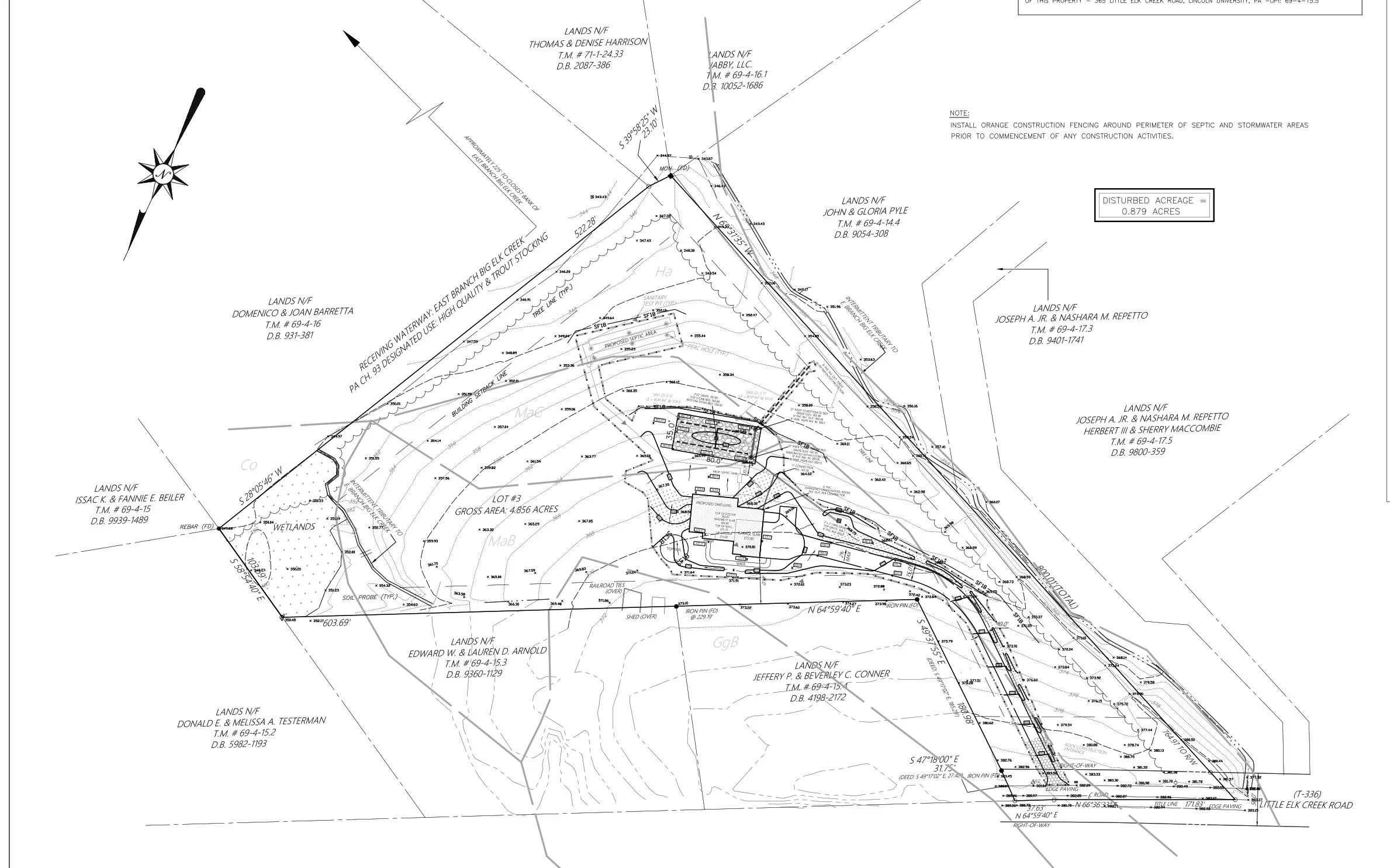
LAND DEVELOPMENT

ENVIRONMENTAL

Technical drawing of a septic system layout for a single-family dwelling, including building sewer and inspection points, by Monarch Products Company.

STORMWATER & SEPTIC TESTING - DETAILED SOILS ANALYSIS BY PA SEWAGE ENFORCEMENT OFFICER

Excavator digging a deep trench in brown soil with a clear sky above. Stormwater and Septic Testing